Contemporary Extension, Conwy
Client Name: Private Client
Work Undertaken: Full architectural design, planning and building regulations and on-site support.
Contract Value: 150k
Status: Due to start 2025
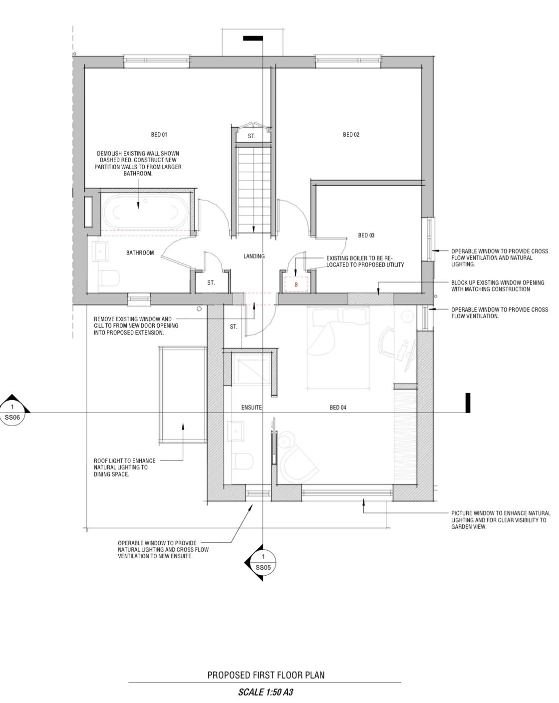
Description:
Contemporary rear house extension. Ground floor: white rendered finish, open-plan kitchen / dining / living space with expansive glazing, minimal-frame sliding doors, large rooflights, strong indoor–outdoor connection. Clean modern lines, light-filled interior, refined material palette.
First floor: bold projecting box volume clad in black composite cladding, sharp geometric form, flat roof with hidden gutters. Overall aesthetic: minimal, elegant, crisp detailing, high-quality contemporary architecture.
